Progetto ARMADI

L’armadio è uno degli elementi fondamentali dell’arredo. Progettarlo con me significa trasformare un’idea in qualcosa di profondamente tuo.

Non si tratta solo di esperienza e professionalità, ma di un percorso condiviso in cui ogni dettaglio prende forma intorno a te. 

Un armadio su misura nasce dall’ascolto delle tue esigenze, dalla scelta consapevole di materiali e accessori, dalle dimensioni pensate al millimetro e da soluzioni uniche che valorizzano ogni spazio.

Il risultato è un progetto irripetibile, capace di raccontare il tuo stile e rendere la tua casa ancora più tua.

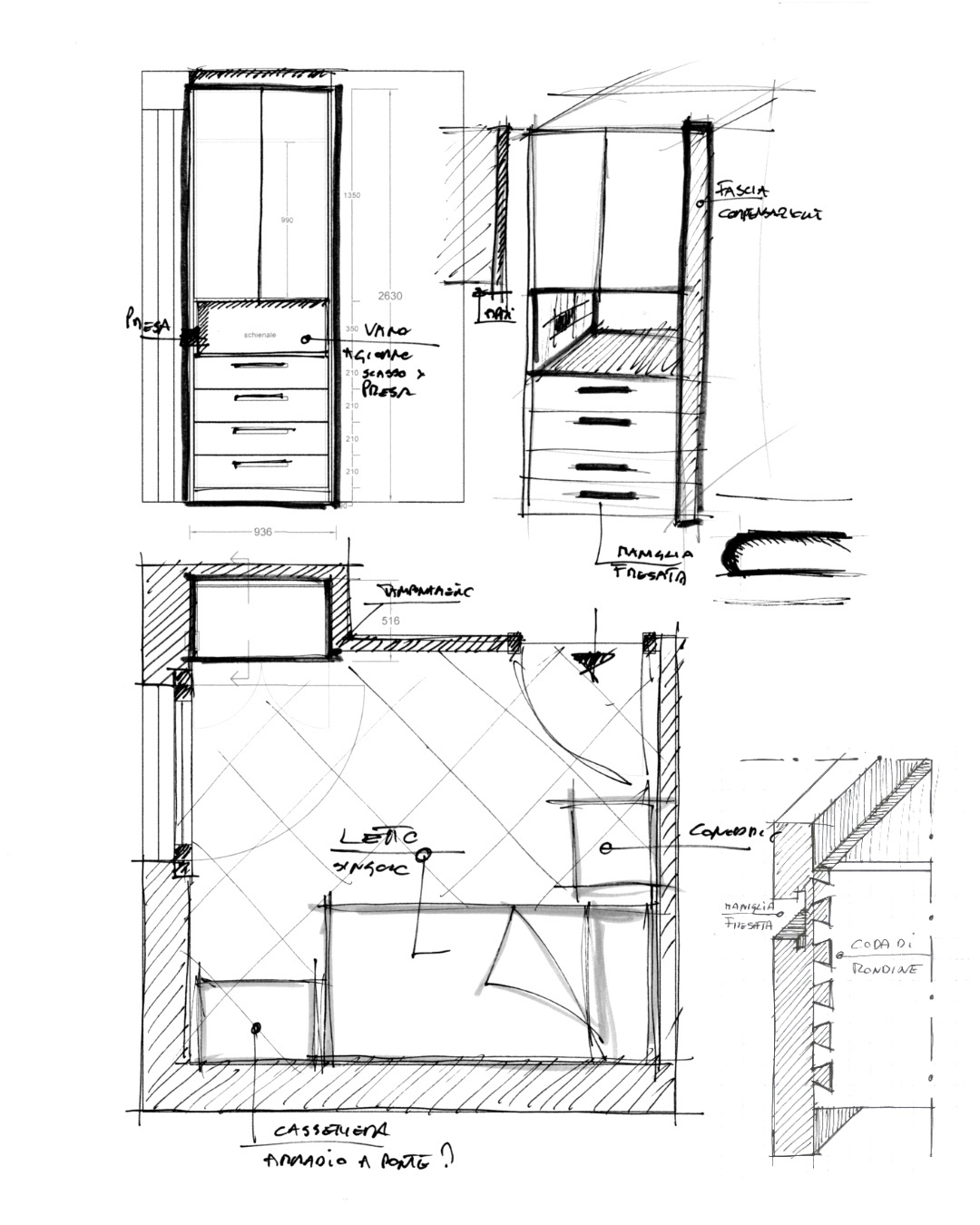
Dimensioni, materiali, finiture e accessori vengono selezionati in base a criteri estetici e pratici, con soluzioni progettuali studiate per ottimizzare lo spazio e garantire comfort e durata nel tempo. Un approccio sartoriale che unisce tecnica, qualità e design.

Che si tratti di una stanza con misure particolari, una mansarda o semplicemente del desiderio di un armadio unico, il mio lavoro parte sempre da te.

Cosa posso personalizzare:

  • Lunghezza, altezza e profondità,
  • Ante battenti,
  • Ante scorrevoli,
  • Design delle ante,
  • Materiali, colori e rivestimenti,
  • Armadio lineare,
  • Armadio angolare,
  • Armadio a ponte,
  • Armadio per mansarda,
  • Finiture sartoriali e dettagli su richiesta.

Cosa significa un armadio su misura:

  • Sfruttare al meglio ogni centimetro,
  • Ottenere il massimo contenimento,
  • Scegliere uno stile coerente con il tuo ambiente,
  • Investire in una soluzione pensata per durare nel tempo.
Cliente

tu

Data

2026

Categoria

Armadi, Mobili su misura, Camera, Disimpegno, Ripostiglio, Cameretta.